Core-48
DJ-roofs
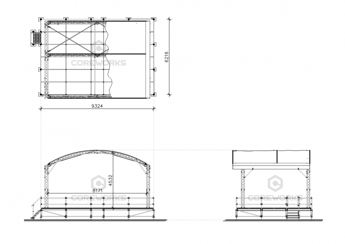
Stages type Arc 48 of 8 x 6 meters (w x d) comprising an aluminum construction of trusses 30 x 30 cm, integrated in a Layher event stage basic. The cover and walls are a fire-resistant PVC sail material which is transparant, or black on the inside and silver grey on the outside.
The Core-48 is rented as a larger Dj-roof or a smaller concert stage. It is immediately available in various floor heights.
- Canopy type Arc 48
- Large DJ roof or a smaller concert stage
